Becker County Parcel Information
New
Search
Values &
Taxes
Zoning
Info
Land
Info
Res.
Bldg.
Ag.
Bldg.
Yard
Items
Sales
Info
Summary
Parcel Number:
100243000
GIS Map - NEW & Mobile Friendly
or GIS Map -
Legacy Version
Property Address:
34791 HUBBLE POND RD
ROCHERT
Owner Name:
MICHAEL W MORRIS
Owner Address:
34791 HUBBLE POND RD
ROCHERT MN 56578
Legal Description:
Section 13 Township 139 Range 040
W 330' OF NE1/4 OF NE1/4
Valuation & Taxation
top
Tax Assessment Year
2026 Values
2025 Values
2024 Values
Estimated Building & Improvements Value
$189,000
$79,400
$127,500
Estimated Land Value
$83,600
$70,600
$64,100
Estimated Machinery Value
Total Estimated Value
$272,600
$150,000
$191,600
Tax Payable Year
2026 Payable
2025 Payable
Taxable Market Value
$116,900
$162,300
Tax Details -
please see statement
2026 Statement
2025 Statement
Total Tax Levied
$772.00
$1,042.00
Total Payments
-$772.00
-$1,042.00
Unpaid Balance
$0.00
$0.00
No prior years unpaid.
MN Allocation Information
top
Rec #
Allocation Description
Alloc. Value
1
Res 1 unit - Full Homestead
$187,900
2
Res 1 unit - Non-Homestead
$84,700
Zoning Information
top
Zoning District
Township
Erie
Zoning District
Agricultural
Other Descriptions
Zoning Permits
Type
Status
Details
Site
Approved: 06/23/25
New Home-Onsite Construction (28 feet x 36 feet )
Imaged Files
Document Type
Available Years
Septic
 
2025
 
2020*
Land Information
top
*NOTICE* Sizes are for assessment purposes only and may NOT represent actual dimensions. For more accurate, complete data refer to plat maps, or legal documents.
Deed Acres
Front Ft.
Sq. Ft.
Est. Acres
10
10
Description
Flags
Size
109003 SITE-ERIE
1 AC
601420 WATER/SEWER/ELEC
1 UT
109501 BLDG SITE ACRE
7.75 AC
604718 GOOD EXTRA SITE
1 UT
109501 BLDG SITE ACRE
1 AC
999999 ROAD
0.25 AC
Residential Buildings
top
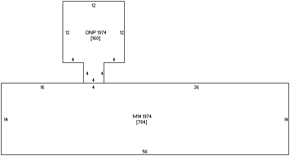
Res Bldg # 1 details:
Occupancy
Single-Family / Owner Occupied
Year Built
1974
Bldg Style
Mfd Home (Single)
Arch Style
Mobile/Manufactured
Area
944 SqFt
Condition
Below Normal
Basement
None
Heating
FHA-Propane Gas
AC
No
Attic
None
Foundation
Piers
Roof
Flat/Metal
Ext Walls
Steel
Int Walls
Panel
Floor
Carpet
Rms Above Ground
0
Rms Below Ground
0
Bedrms Above
2
Bedrms Below
0
Building sketch:
Open sketch in new
window ⇒
Addition # 1
Year Built
1974
Style
1 Story Frame
Area SF
160
Condition
Below Normal
Bsmnt SF
0
Heat
FHA-Propane Gas
AC
No
Attic SF
0
Garage # 1
Year Built
1995
Style
Det Frame
Area SF
1876
Condition
Very Good
Bsmnt SF
0
Qtrs Over Style
None
Qtrs Over SF
0
Qtrs Over AC
0
Plumbing
Style
Count
Standard Bath - 3 Fixt
1
Res Bldg # 2 details:
Occupancy
Single-Family / Owner Occupied
Year Built
2025
Bldg Style
1 Story Frame
Arch Style
Rambler
Area
1008 SqFt
Condition
Normal
Basement
Slab
Heating
FHA-Propane Gas
AC
No
Attic
None
Foundation
Poured Concrete
Roof
Gable.Metal
Ext Walls
None
Int Walls
Drywall
Floor
Vinyl
Rms Above Ground
0
Rms Below Ground
0
Bedrms Above
0
Bedrms Below
0
Building sketch:
Open sketch in new
window ⇒
Plumbing
Style
Count
Standard Bath - 3 Fixt
1
Ag Buildings
top
Ag Bldg # 1 details:
Bldg Type
Steel Utility Building
Descr
POLE BG 0-1000 8-11 - 009100
Year Built
2011
Bldg Count
1
Width
12
Length
10
Height
10
Area
120 Square Feet
Frame Type
Post Frame
Ag Bldg # 2 details:
Bldg Type
Steel Utility Building
Descr
POLE BG 0-1000 8-11 - 009100
Year Built
2011
Bldg Count
1
Width
20
Length
28
Height
10
Area
560 Square Feet
Frame Type
Post Frame
Yard Items
top
Yard Item # 1 details:
Descr
Shed
Year Built
2002
Item Count
1
Condition
Normal
Type
Frame Shed
Pricing
Average
Width
6.00
Length
12.00
Area
72 Square Feet
Yard Item # 2 details:
Descr
Shed
Year Built
2002
Item Count
1
Condition
Normal
Type
Frame Shed
Pricing
Average
Width
8.00
Length
12.00
Area
96 Square Feet
Yard Item # 3 details:
Descr
Shed
Year Built
2002
Item Count
1
Condition
Normal
Type
Frame Shed
Pricing
Average
Width
8.00
Length
14.00
Area
112 Square Feet
Yard Item # 4 details:
Descr
Shed
Year Built
2011
Item Count
1
Condition
Normal
Type
Frame Shed
Pricing
Average
Width
9.00
Length
13.00
Area
117 Square Feet
Yard Item # 5 details:
Descr
Shed
Year Built
2011
Item Count
1
Condition
Normal
Type
Metal Shed
Pricing
Average
Width
8.00
Length
44.00
Area
352 Square Feet
Yard Item # 6 details:
Descr
Shed
Year Built
2011
Item Count
1
Condition
Normal
Type
Metal Shed
Pricing
Average
Width
8.00
Length
38.00
Area
304 Square Feet
Sales Information
top
Sale Date: 11/12/1993 - Property Type: Residential (< 4 Units)
Buyer
MICHAEL W MORRIS
Seller
PATRICIA K JOHNSON
Sale Price
$5,000
Ins Type
Contract for Deed
Adj Sale Price
$5,000
Q/U
U
Adj Reason
Q/U Reason
Relative sale
Sale Date: 11/1/1993 - Property Type: Residential (< 4 Units)
Buyer
MORRIS, MICHAEL W
Seller
JOHNSON, PATRICIA K
Sale Price
$5,000
Ins Type
Warranty Deed
Adj Sale Price
$5,000
Q/U
Q
Adj Reason
Q/U Reason
Good sale