Becker County Parcel Information
New
Search
Values &
Taxes
Zoning
Info
Land
Info
Res.
Bldg.
Yard
Items
Sales
Info
Summary
Parcel Number:
191727538
GIS Map - NEW & Mobile Friendly
or GIS Map -
Legacy Version
Property Address:
15803 RIDGEVIEW LN E
Owner Name:
JESSICA LARSON & ROY LARSON
Owner Address:
15803 RIDGEVIEW LN E
DETROIT LAKES MN 56501
Legal Description:
Section 05 Township 138 Range 041
RIDGE VIEW 138 41 Block 003
LOT 4
Valuation & Taxation
top
Tax Assessment Year
2025 Values
2024 Values
2023 Values
Estimated Building & Improvements Value
$395,700
$334,700
$312,100
Estimated Land Value
$48,600
$48,600
$49,400
Estimated Machinery Value
Total Estimated Value
$444,300
$383,300
$361,500
Tax Payable Year
2025 Payable
2024 Payable
Taxable Market Value
$371,200
$356,800
Tax Details -
please see statement
2025 Statement
2024 Statement
Total Tax Levied
$2,312.00
$2,298.00
Total Payments
-$2,312.00
-$2,298.00
Unpaid Balance
$0.00
$0.00
No prior years unpaid.
MN Allocation Information
top
Rec #
Allocation Description
Alloc. Value
1
Res 1 unit - Full Homestead
$444,300
Zoning Information
top
Zoning District
Township
Lake View
Zoning District
Residential
Other Descriptions
Plat of Ridge View
Zoning Permits
Type
Status
Details
Septic
Approved: 10/31/16
System Status: Vacant Lot- No existing system- New structure
System Serves: Dwelling
Site
Approved: 07/18/16
House/Cabin: New W/ Walkout Basement (43 x 26)
Att. Garage: New (32 x 24)
Imaged Files
Document Type
Available Years
Septic
 
2020*
* A '2020' PDF will contain ALL the septic documentation available from the earliest years on file up through and including the year 2020.
Land Information
top
*NOTICE* Sizes are for assessment purposes only and may NOT represent actual dimensions. For more accurate, complete data refer to plat maps, or legal documents.
Deed Acres
Front Ft.
Sq. Ft.
Est. Acres
0.96
Description
Flags
Size
199003 SITE-LAKE VIEW
0.96 AC
601420 WATER/SEWER/ELEC
1 UT
Residential Buildings
top
Res Bldg # 1 details:
Occupancy
Single-Family / Owner Occupied
Year Built
2016
Bldg Style
Split Level Frame
Arch Style
Split Entry
Area
1214 SqFt
Condition
Normal
Basement
Full
Heating
FHA-Natural gas
AC
Yes
Attic
None
Foundation
Poured Concrete
Roof
Gable/Asph
Ext Walls
Vinyl
Int Walls
Drywall
Floor
Laminate/carpet
Rms Above Ground
0
Rms Below Ground
0
Bedrms Above
2
Bedrms Below
2
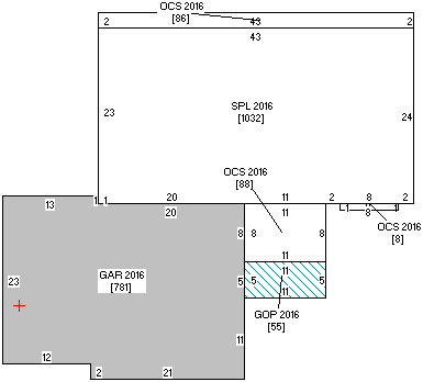
Building sketch:
Open sketch in new
window ⇒
Addition # 1
Year Built
2016
Style
1 Story Frame
Area SF
86
Condition
Normal
Bsmnt SF
0
Heat
FHA-Natural gas
AC
Yes
Attic SF
0
Addition # 2
Year Built
2016
Style
1 Story Frame
Area SF
88
Condition
Normal
Bsmnt SF
0
Heat
FHA-Natural gas
AC
Yes
Attic SF
0
Addition # 3
Year Built
2016
Style
1 Story Frame
Area SF
8
Condition
Normal
Bsmnt SF
0
Heat
FHA-Natural gas
AC
Yes
Attic SF
0
Garage # 1
Year Built
2016
Style
Att Frame
Area SF
781
Condition
Very Good
Bsmnt SF
0
Qtrs Over Style
None
Qtrs Over SF
0
Qtrs Over AC
0
Porch # 1
Area SF
55
Style
1S Frame Open
Bsmnt SF
0
Qtrs Style
Frame
Qtrs SF
0
Qtrs AC
Yes
Plumbing
Style
Count
Standard Bath - 3 Fixt
3
Basement Finish
Type
Range
Area SF
Living Qtrs. W/ Walk-out
Avg
933
Decks & Patios
Style
Area SF
Concrete Patio
463
Yard Items
top
Yard Item # 1 details:
Descr
Paving - Concrete
Year Built
2016
Item Count
1
Condition
Normal
Paving Type
Concrete Roads
Price Method
Per Square Foot
Pricing
Average
Quantity
882 Square Feet
# of Spaces
0
Lighting
None
Yard Item # 2 details:
Descr
Paving - Asphalt
Year Built
2016
Item Count
1
Condition
Normal
Paving Type
Asphalt Parking
Price Method
Per Square Foot
Pricing
Average
Quantity
1,380 Square Feet
# of Spaces
0
Lighting
None
Sales Information
top
Sale Date: 5/10/2019 - Property Type: Residential (< 4 Units)
Buyer
LARSON ROY & JESSICA
Seller
HELBLING NICHOLAS J & KELSEY E
Sale Price
$317,500
Ins Type
Warranty Deed
Adj Sale Price
$312,850
Q/U
Q
Adj Reason
Personal Property
Q/U Reason
Good sale
Sale Date: 12/9/2016 - Property Type: Residential (< 4 Units)
Buyer
HELBLING NICHOLAS J & KELSEY E
Seller
NUGGET INVESTMENTS LLC
Sale Price
$299,900
Ins Type
Warranty Deed
Adj Sale Price
$299,900
Q/U
Q
Adj Reason
Q/U Reason
Good sale