Becker County Parcel Information
New
Search
Values &
Taxes
Zoning
Info
Land
Info
Res.
Bldg.
Yard
Items
Sales
Info
Summary
Parcel Number:
200498007
GIS Map - NEW & Mobile Friendly
or GIS Map -
Legacy Version
Property Address:
39360 DORA LEE LN
WAUBUN
Owner Name:
KELLY CHRISTIANSON ET AL
Owner Address:
35350 290TH ST
ROSEAU MN 56751
Legal Description:
Section 04 Township 142 Range 040
DORA LEE EST 2ND ADD Block 001
LOT 2
Valuation & Taxation
top
Tax Assessment Year
2026 Values
2025 Values
2024 Values
Estimated Building & Improvements Value
$347,800
$318,500
$261,400
Estimated Land Value
$180,700
$180,700
$176,900
Estimated Machinery Value
Total Estimated Value
$528,500
$499,200
$438,300
Tax Payable Year
2026 Payable
2025 Payable
Taxable Market Value
$499,200
$438,300
Tax Details -
please see statement
2026 Statement
2025 Statement
Total Tax Levied
$2,870.00
$2,624.00
Total Payments
-$2,624.00
Unpaid Balance
$2,870.00
$0.00
No prior years unpaid.
MN Allocation Information
top
Rec #
Allocation Description
Alloc. Value
1
SRR - Non-Homestead
$528,500
Zoning Information
top
Zoning District
Township
Maple Grove
Zoning District
Agricultural
Other Descriptions
Plat of Dora Lee Estates 1st Add
Imaged Files
Document Type
Available Years
Septic
 
2020*
Land Information
top
*NOTICE* Sizes are for assessment purposes only and may NOT represent actual dimensions. For more accurate, complete data refer to plat maps, or legal documents.
Deed Acres
Front Ft.
Sq. Ft.
Est. Acres
150
Description
Flags
Size
200103 WHITE EARTH LK SITE
1 UT
601420 WATER/SEWER/ELEC
1 UT
200105 FF-WHITE EARTH LK-A
150 FF
Residential Buildings
top
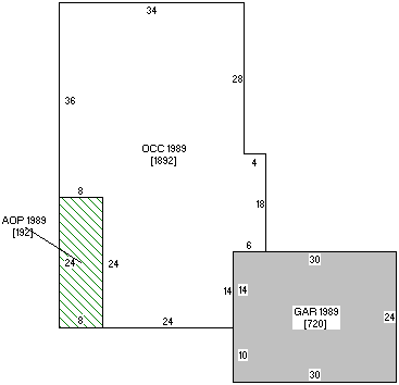
Res Bldg # 1 details:
Occupancy
Single-Family / Owner Occupied
Year Built
1989
Bldg Style
1 Story Frame
Arch Style
Rambler
Area
1892 SqFt
Condition
Very Good
Basement
Slab
Heating
Elec - Radiant
AC
No
Attic
None
Foundation
Poured Concrete
Roof
Gable/Asph
Ext Walls
Steel
Int Walls
Drywall
Floor
Carpet
Rms Above Ground
5
Rms Below Ground
0
Bedrms Above
4
Bedrms Below
0
Building sketch:
Open sketch in new
window ⇒
Garage # 1
Year Built
1994
Style
Att Frame
Area SF
720
Condition
Normal
Bsmnt SF
0
Qtrs Over Style
None
Qtrs Over SF
0
Qtrs Over AC
0
Porch # 1
Area SF
192
Style
1S Frame Open
Bsmnt SF
0
Qtrs Style
Frame
Qtrs SF
0
Qtrs AC
No
Plumbing
Style
Count
Standard Bath - 3 Fixt
2
Fireplace
Descr
Story Ht
Count
Gas
1 Story
1
Decks & Patios
Style
Area SF
Vinyl/CompoDeck
720
Yard Items
top
Yard Item # 1 details:
Descr
Paving - Concrete
Year Built
1990
Item Count
1
Condition
Normal
Paving Type
Concrete Roads
Price Method
Per Square Foot
Pricing
Average
Quantity
440 Square Feet
# of Spaces
0
Lighting
None
Sales Information
top
Sale Date: 7/15/2011 - Property Type: Seasonal Rec. Residential
Buyer
CHRISTIANSON, KELLY
Seller
FEDERAL HOME LOAN MORTGAGE CORPORATION
Sale Price
$162,000
Ins Type
Limited Warranty
Adj Sale Price
$162,000
Q/U
U
Adj Reason
Q/U Reason
Bank sale
Sale Date: 10/7/2005 - Property Type: Seasonal Rec. Residential
Buyer
JOHNSON, CHERYL A & GAIL L
Seller
OLSON, LYNETTE S & THEODORE S
Sale Price
$235,900
Ins Type
Warranty Deed
Adj Sale Price
$231,000
Q/U
Q
Adj Reason
Personal Property
Q/U Reason
Good sale
Sale Date: 3/4/1992 - Property Type: Seasonal Rec. Residential
Buyer
OLSON, THEODORE & LYNETTE
Seller
WYSUPH, ROBERT & DORISS
Sale Price
$52,000
Ins Type
Warranty Deed
Adj Sale Price
$52,000
Q/U
U
Adj Reason
Q/U Reason
Relative sale