Becker County Parcel Information
New
Search
Values &
Taxes
Land
Info
Res.
Bldg.
Yard
Items
Sales
Info
Summary
Parcel Number:
490830514
GIS Map - NEW & Mobile Friendly
or GIS Map -
Legacy Version
Property Address:
1855 LONG LAKE RD
DETROIT LAKES
Owner Name:
KEVIN G & CARMEN I MCCULLOUGH
Owner Address:
1855 LONG LAKE RD
DETROIT LAKES MN 56501
Legal Description:
Section 32 Township 139 Range 041
CLEAR CREEK Lot 007 Block 001
Valuation & Taxation
top
Tax Assessment Year
2026 Values
2025 Values
2024 Values
Estimated Building & Improvements Value
$382,300
$340,400
$305,900
Estimated Land Value
$38,700
$38,700
$38,700
Estimated Machinery Value
Total Estimated Value
$421,000
$379,100
$344,600
Tax Payable Year
2026 Payable
2025 Payable
Taxable Market Value
$366,700
$329,100
Tax Details -
please see statement
2026 Statement
2025 Statement
Total Tax Levied
$4,986.00
$4,796.00
Total Payments
-$4,796.00
Unpaid Balance
$4,986.00
$0.00
No prior years unpaid.
MN Allocation Information
top
Rec #
Allocation Description
Alloc. Value
1
Res 1 unit - Full Homestead
$421,000
Land Information
top
*NOTICE* Sizes are for assessment purposes only and may NOT represent actual dimensions. For more accurate, complete data refer to plat maps, or legal documents.
Deed Acres
Front Ft.
Sq. Ft.
Est. Acres
22348
Description
Flags
Size
490301 CLEAR CREEK (SITE)
1 UT
490305 CLEAR CREEK (SF)
22348 SF
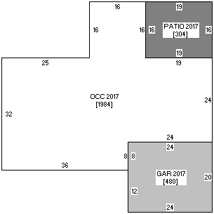
Residential Buildings
top
Res Bldg # 1 details:
Occupancy
Single-Family / Owner Occupied
Year Built
2017
Bldg Style
1 Story Frame
Arch Style
Rambler
Area
1984 SqFt
Condition
Normal
Basement
Slab
Heating
FHA-Natural gas
AC
Ductless
Attic
None
Foundation
Poured Concrete
Roof
Gable/Asph
Ext Walls
Steel
Int Walls
Drywall
Floor
Vinyl
Rms Above Ground
0
Rms Below Ground
0
Bedrms Above
3
Bedrms Below
0
Building sketch:
Open sketch in new
window ⇒
Garage # 1
Year Built
2017
Style
Att Frame
Area SF
480
Condition
Normal
Bsmnt SF
0
Qtrs Over Style
None
Qtrs Over SF
0
Qtrs Over AC
0
Garage # 2
Year Built
2017
Style
Det Frame
Area SF
720
Condition
Normal
Bsmnt SF
0
Qtrs Over Style
None
Qtrs Over SF
0
Qtrs Over AC
0
Plumbing
Style
Count
Standard Bath - 3 Fixt
2
Fireplace
Descr
Story Ht
Count
Freestanding
1 Story
1
Decks & Patios
Style
Area SF
Concrete Patio
304
Yard Items
top
Yard Item # 1 details:
Descr
Paving - Concrete
Year Built
2017
Item Count
1
Condition
Normal
Paving Type
Concrete Roads
Price Method
Per Square Foot
Pricing
Average
Quantity
2,500 Square Feet
# of Spaces
0
Lighting
None
Sales Information
top
Sale Date: 9/28/2017 - Property Type: Residential (< 4 Units)
Buyer
MCCULLOUGH KEVIN G & CARMEN I
Seller
AAA CONSTRUCTION OF MINNESOTA INC
Sale Price
$242,436
Ins Type
Warranty Deed
Adj Sale Price
$238,436
Q/U
U
Adj Reason
Personal Property
Q/U Reason
Physical change
Sale Date: 5/16/2017 - Property Type: Residential - bare land
Buyer
AAA CONSTRUCTION OF MINNESOTA INC
Seller
HOLZGROVE DANIEL R
Sale Price
$13,500
Ins Type
Quit Claim Deed
Adj Sale Price
$13,500
Q/U
U
Adj Reason
Q/U Reason
Relative sale
Sale Date: 2/26/2016 - Property Type: Residential - bare land
Buyer
HOLZGROVE, ADAM J & DANIEL R
Seller
WEUM, RICHARD D & KRYSTINE K
Sale Price
$27,000
Ins Type
Warranty Deed
Adj Sale Price
$27,000
Q/U
Q
Adj Reason
Q/U Reason
Good sale
Multi Prop
YES - Sale also included:
490830518